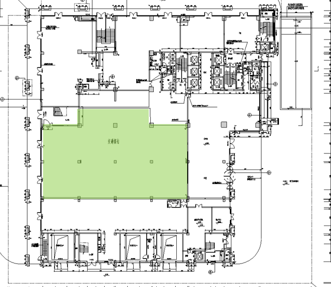
苏州绿原城乡建设有限公司拟对位于苏州市姑苏区人民路3158号万融国际大厦102室举行果真竞标招租(详见招租位置示意图),,,102室修建面积约800㎡(详细区域招标以现场确以为准)
万融国际大厦102室目招租位置示意图:

| 店面号 | 修建面积 | 楼层 | 谋划业态 |
| 万融国际大厦102室 | 约800㎡ | 一层 | 金融 |
一、报名条件:
1、具有谋划相关业态履历并提供相关证实质料,,,在苏正当注册的自力法人资格的企业或小我私家;;;;
2、企业:注册资金不低于50万元,,,注册谋划规模内包括此次竞标从事业态。。。。。财务和谋划状态优异,,,具备推行条约能力;;;;
3、小我私家
1)人行征信报告
2)竞标人提供身份证原件、复印件,,,在苏栖身证实(本市户口本或暂时栖身证)。。。。。
二、报名、现场勘查、答疑的方法和时间:
报名、现场勘查、答疑的所在:苏州市姑苏区人民路3158号万融国际大厦B1物业效劳中心;;;; 咨询电话:15250013779 王女士
苏州绿原城乡建设有限公司